Sahale
Sahale
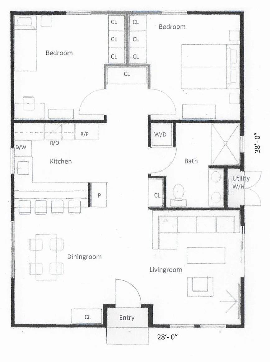
Step up to The Sahale, a spacious and versatile 1064 sq. ft. small home plan designed for families or groups. This 2-bedroom cottage design comfortably accommodates 3-4 people while maintaining full wheelchair access throughout the entire layout.
As a larger-scale small home design, The Sahale is the perfect solution for a primary residence, a multi-generational backyard suite, or a high-end vacation rental that prioritizes inclusivity and modern, open-concept living.
Key Features:
Living Area: 1064 sq. ft. net living space.
Layout: Generous 2-bedroom floor plan designed for 3-4 occupants.
Accessibility: 100% barrier-free, wheelchair-accessible interior.
Compliance: Engineered to 2015 International Residential Code (IRC) standards.
Technical Specifications & Compliance
Builder Responsibility: All construction must comply with the 2015 IRC and all applicable local, state, and federal building codes. It is the builder’s responsibility to verify all dimensions on-site prior to beginning construction.
Regional Engineering: Lateral bracing and snow load support must be designed to meet specific local seismic, wind, and climate conditions. The designer is not responsible for site-specific changes or modifications made by others.
