Kulshan
Kulshan
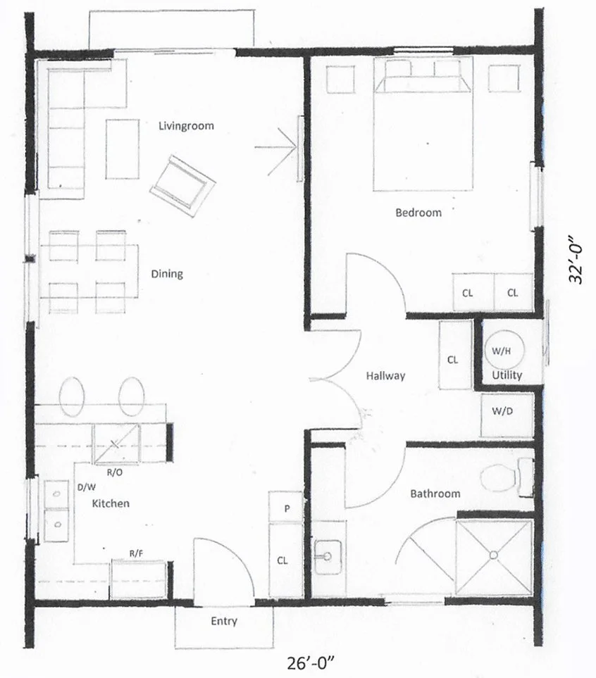
Experience the perfect balance of simplicity and accessibility with The Kulshan. This thoughtfully designed 728 sq. ft. small home plan is optimized for 1-2 occupants, offering a spacious, open-concept layout that prioritizes ease of movement.
As a premier ADA-friendly cottage design, The Kulshan features full wheelchair access throughout, making it an ideal choice for aging-in-place, a permanent ADU, or a cozy vacation retreat.
Key Features:
Living Area: 728 sq. ft. net living space.
Occupancy: Tailored for 1-2 people.
Accessibility: 100% barrier-free, wheelchair-accessible floor plan.
Compliance: Designed to 2015 International Residential Code (IRC) standards.
Technical Specifications & Compliance
Builder Responsibility: All construction must comply with the 2015 IRC and all applicable local, state, and federal building codes. It is the builder’s responsibility to verify all dimensions on-site prior to beginning construction.
Regional Engineering: Lateral bracing and snow load support must be designed to meet specific local seismic, wind, and climate conditions. The designer is not responsible for site-specific changes or modifications made by others.
